West Coast Expressway (Section-4 Sungai Rasau to NNKSB Interchange. Privatization of Lebuhraya Persisiran Pantai Barat.)
Country:
Malaysia
Location within Country:
Taiping - Banting
Name of Client:
Engineering and Environmental Consultants Sdn Bhd, Malaysia
Completion Date:
August 2015
Name of Associated Consultants, if any:
NA
Narrative Description of Project:
The design engineer for this project were JACOBS, PERUNDING MAHIR BERSATU SDN, BHD (430844-W).
Engineering and Environmental Company (EEC) was appointed as a design vetting consultant by the client. EEC subsequently hired the services of Exponent Engineers (Pvt.) Limited to carry out the detail design vetting of elevated bridge structures.
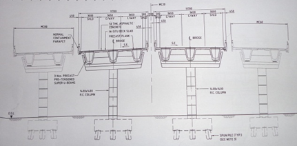
The west Coast Expressway or Lebuhraya Pantai Barat, Route E28 is a planned expressway that was built on the west coast of Peninsula Malaysia. It connects taiping, perak to banting in Selangor. The Expressway is approximately 315.8 km in length. Section 4, was assigned for vetting to Exponent Engineers, runs from Padang Jawa KTMB rail lines to the new north Klang Straits Bypass interchange and is approximately 5.59 km in length and features elevated structures over the majority of its length. The Section 4 comprises of two parallel 10.8m wide carriageways each featuring two 3.65m traffic lanes, a 3m shoulder and a 0.5m margin strip. Each carriageway is supported on Three U shaped Pre tensioned and post tensioned Girders, with various spans between 24m to 47m.
Description of Actual Services Provided by Our Staff within the Assignment:
Exponent Engineers were entrusted to:
To carry out vetting of the Super and Sub Structure of the bridges
To check the structural members for stability and strength using latest software such as STAAD etc
To analyze bridge Elements and carry out Stress Check of Post Tensioned and Pretensioned Girders along with ULS and Shear Check,Bridge Deck,Transom,Pier,and Pile Cap check
Prepare comprehensive report on design standards and suitability of each bridge member after detailed vetting through latest softwares